865 NE 208th Ter, Miami, FL, 33179, US
Single FamilyEstado: active
Impuestos anuales aprox: $5,360






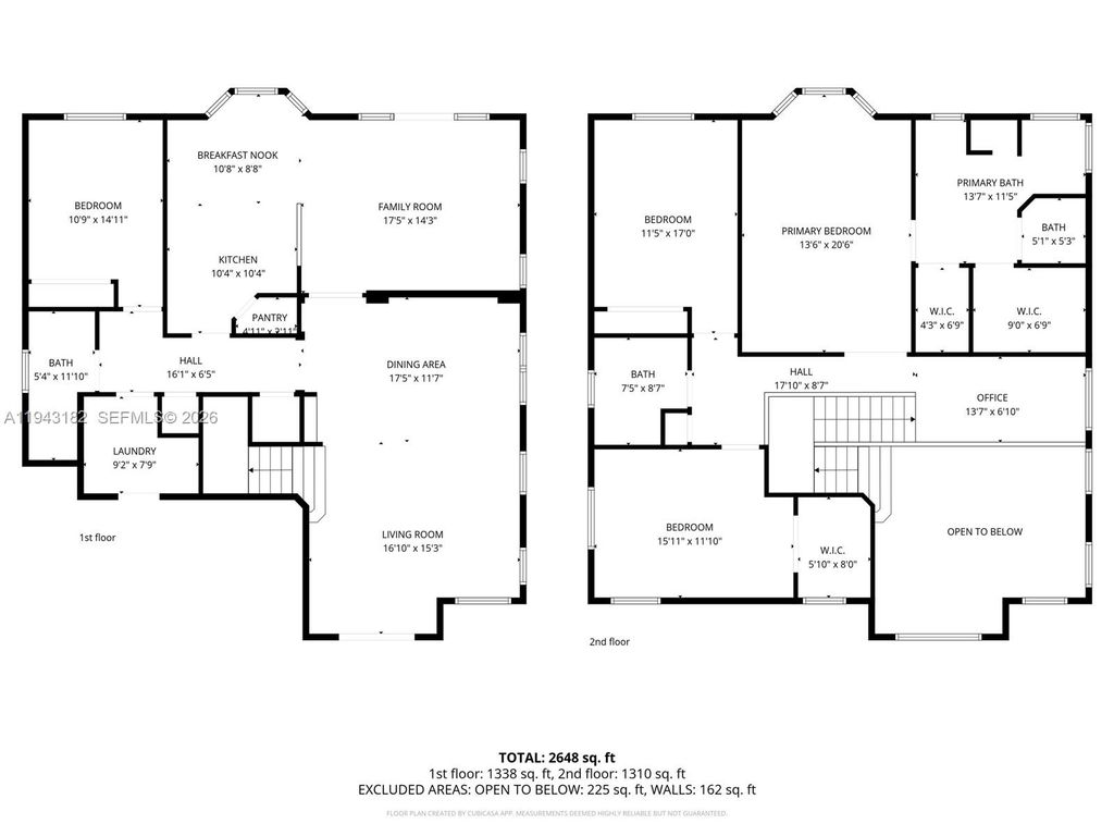
Esta espaciosa residencia de cuatro habitaciones y tres baños en California Club Estates ofrece comodidad libertad y versatilidad sin las restricciones de una HOA. Destaca la habitación con baño completo en el primer nivel ideal para visitas familiares multigeneracionales o una oficina privada. Las áreas sociales abiertas reciben abundante luz natural y se conectan de forma fluida con la cocina creando un entorno perfecto tanto para la vida diaria como para reuniones. En el segundo nivel las habitaciones adicionales brindan privacidad y amplitud. El exterior ofrece el espacio ideal para personalizar y crear el estilo de vida que desees. Sin cuotas sin aprobaciones y con infinitas posibilidades esta propiedad es una excelente oportunidad en Miami.
Área MLS: 12
Notas especiales: Subdivisión: CALIFORNIA CLUB ESTATES
Aire acondicionado -Ceiling fan(s) -Central air Calefacción -Central Interior -Breakfast bar -Master downstairs -Pantry -Walk-in closet(s) Electrodomésticos -Dishwasher -Dryer -Electric range -Microwave -Refrigerator -Washer Exterior -Lighting Piscina -None Estacionamiento -Covered -Paver block Servicios y utilidades -Public sewer -Public water -Cable available Vista -None Características principales -Casa de dos niveles sin HOA -4 habitaciones y 3 baños completos -Habitación y baño completo en el primer piso -2897 sqft de área habitable -Áreas sociales amplias y luminosas -Cocina integrada ideal para el entretenimiento -Diseño flexible para familia multigeneracional u oficina en casa -Garaje para 2 autos -Lote privado sin restricciones de asociación
This information is not verified for authenticity or accuracy...